"Complejo de Fuego": Así será el nuevo el nuevo proyecto de Bomberos de Santiago
¿Qué pasó?
El Cuerpo de Bomberos de Santiago (CBS) ha dado un paso decisivo hacia la modernización de sus capacidades operativas con el inicio oficial de la construcción del "Complejo de Fuego". La primera piedra del proyecto fue colocada hoy en una ceremonia que reunió a las autoridades de la institución en la Región Metropolitana.
Este centro se erige como una infraestructura sin precedentes en el Cono Sur, pues no solo representa un avance arquitectónico, sino una evolución estratégica en la forma en que los voluntarios enfrentan las emergencias del tiempo actual.
La iniciativa, que comenzó a gestarse en el año 2020, responde a una necesidad crítica: La creación de entornos controlados pero realistas que permitan a los bomberos experimentar la dinámica del fuego sin los riesgos incontrolables de un siniestro real.
Ir a la siguiente notaCon una inversión que supera el millón de dólares, financiada con el aporte de más de 100 mil socios cooperadores, el CBS reafirma su compromiso de asegurar que sus más de 2.500 voluntarios cuenten con las herramientas necesarias para proteger a la comunidad de manera eficiente y segura.
Así será el nuevo complejo del fuego
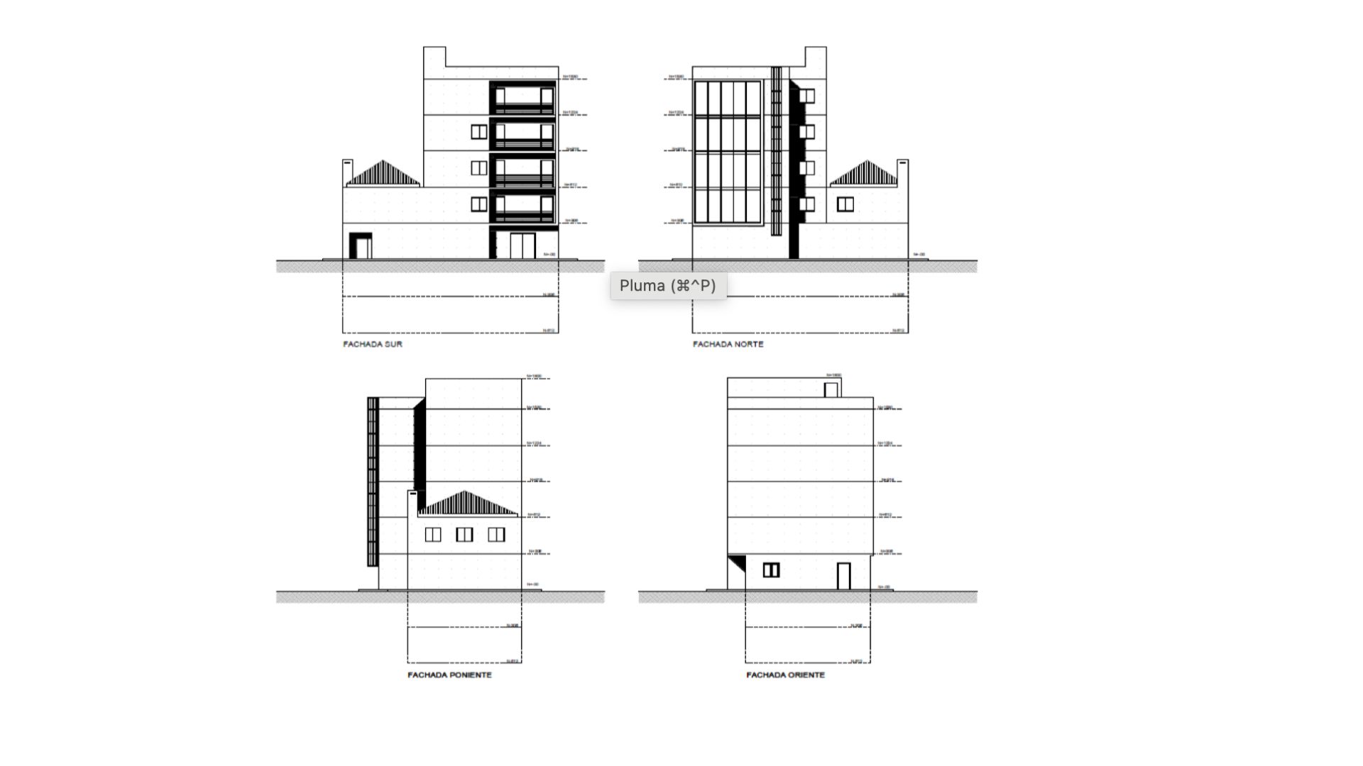
El diseño del nuevo complejo ha sido meticulosamente planificado para cubrir la diversidad de emergencias que ocurren en una metrópoli moderna. En ese sentido, la obra que estará ubicada en la comuna de Colina, contempla una superficie de construcción cercana a los mil metros cuadrados.
El centro estructural de entrenamiento estará dividido en dos módulos principales que simulan distintos entornos urbanos y comerciales.
El primer módulo simula una vivienda a escala real. La estructura cuenta con todas las dependencias comunes de un hogar chileno: Cocina, comedor y diversos dormitorios. Esto para que los efectivos puedan practicar maniobras de búsqueda y rescate, ventilación y ataque del fuego en espacios confinados, donde la visibilidad es nula y la distribución de los muebles juega un rol crucial en la supervivencia de las víctimas y del propio personal.

El segundo representa un desafío técnico de mayor envergadura: Un edificio de cinco niveles con dos plantas subterráneas. Esta estructura es fundamental para el entrenamiento en incendios de gran altura y emergencias en sótanos o estacionamientos, escenarios que son cada vez más frecuentes debido al crecimiento vertical de Santiago.
Al integrar áreas comerciales e industriales dentro de este mismo bloque, los instructores podrán diseñar simulacros que van desde fugas de gas en locales comerciales hasta incendios complejos en bodegas industriales, elevando significativamente el nivel de dificultad y pericia técnica exigida a los participantes.
Proyecciones del nuevo centro de entrenamiento del CBS
Respecto a la ceremonia en la que se llevó a cabo el acto simbólico de colocar la primera piedra del proyecto, el Superintendente del CBS Álvaro Lara Alba, dijo que esto representa mucho más que el inicio de una obra. Para él, la construcción del complejo refleja una convicción institucional: La exigencia y preparación permanente de los bomberos y bomberas.
Pero, más allá de la formación técnica, el "Complejo de Fuego" también destaca por su enfoque en la responsabilidad ambiental. En un contexto de crisis hídrica y climática, se integraron tecnologías que minimizan la huella ecológica del entrenamiento.
El sistema de combustión para las prácticas utilizará gas licuado, una alternativa mucho menos contaminante que la quema de materiales sólidos tradicionales. Además, contará con un avanzado sistema de tratamiento que permitirá la reutilización de aproximadamente el 75?% del agua empleada en los ejercicios de extinción.

Beneficios del complejo de fuego en Chile y la región
Los beneficios de esta obra se extienden más allá de las fronteras de las nueve comunas que atiende el CBS. Al ser un centro único en Sudamérica, se proyecta como un polo de capacitación regional que podrá recibir a voluntarios de otros cuerpos de bomberos del país y del extranjero.
Fomentando la estandarización de procedimientos de rescate a nivel nacional y posicionando a Chile como un referente en seguridad y gestión de emergencias, ya que al proporcionar un espacio donde el error es parte del aprendizaje controlado, llegado el momento de enfrentar una emergencia real, los bomberos de Santiago tendrán una precisión técnica superior.

Leer más de
Notas relacionadas
- Video muestra a personas huyendo cerca del Metro durante disparos de PDI a delincuente que intentó asaltarlo
- Esta grave pero fuera de riesgo vital: Detective de la PDI apuñalado tenía pasajes para viajar al sur
- Arma usada por delincuente baleado por PDI en Cerrillos tenía inscripción del Ejército argentino